1 聚合物水泥防水涂料的组成
聚合物水泥防水涂料是由聚合物乳液和添加剂组成的有机液料与水泥等材料组成的无机粉料配制的一种双组成的水性建筑防水涂料。
2 聚合物防水材料的分类
聚合物水泥防水涂料按与其加入材料的不同,分为涂膜型和砂浆型。
2.1 聚合物水泥防水涂料涂膜型产品特点:
①具有有机材料弹性高,无机材料耐久性好,与防水基面粘结牢固的双重优点。
②无毒、无害、无污染,属环保型产品。
③具有良好的耐水性、抗渗性、耐酸碱性和耐侯性。
④可在潮湿基面上施工,有效地缩短工期。
2.2 聚合物水泥防水涂料砂浆型产品特点:
①无毒、无害、无污染,属环保型产品。
②与基面粘合力强,不会分层产生空鼓。
③具有良好的抗渗性、抗裂性、耐久性、耐磨性、耐酸碱性和耐候性。
④适用于外墙、厨卫间、水池、地下室、屋面和其它建筑物的防水、防渗、防潮等工程,以及混凝土等基面的裂缝和缺陷的修补。
3 聚合物水泥防水涂料技术指标
聚合物水泥防水涂料已有行业标准,具体技术指标可参见JC/T894‐2001 和JC/T984‐2005 标准。
4 聚合物水泥防水涂料在地下防水工
程中的应用
在地下防水工程中,尽管防水卷材使用量占有比重大,但是对于一些有特殊要求,特殊部位的防水处理,聚合物水泥防水涂料有着不可替代的地位。
4.1 地下工程桩头防水处理
当柔性防水层施工至承台桩身部位时,柔性防水材料如卷材、聚氨酯涂料等就不适宜对桩头进行防水处理,此部位对防水材料的选用提出了严格的要求:既要有良好的防水性,也要求能与桩头承台混凝土融合成一整体,,不能成为桩头与承台的隔离层,而聚合物水泥防水涂料的刚柔结合的物理双重性,正好满足此要求。聚合物水泥防水砂浆或聚合物水泥防水涂膜在此部位都可使用。

4.2 地下工程生活水池防水处理
对于生活水池选用的防水材料,首先考虑的是环保,对人体无毒、无害。而现在的防水材料大部分为有机物防水材料,短期或长期对人体都有一定的危害,无机物防水材料虽然对人体无危害,而其防水效果都不理想,但聚合物水泥防水涂料出现后。这一矛盾得到彻底解决。因为聚合物水泥防水涂料既有机物防水材料的良好防水性,又有无机物防水材料无毒、无害的环保性,从而成为生活水池防水的不二选择。

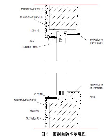
5 聚合物水泥防水涂料在外墙防水工
程中的应用:
在聚合物防水涂料未出现之前,我们对外墙面、外墙窗洞口的渗漏都束手无策,为了防止外墙少渗漏,我们只有不断的提高外墙的抹灰质量,即多道多层抹灰或在砂浆中加入防水粉等,但防水效果并不理想。当聚合物防水涂料出现后,外墙防水从根本上得到了解决,在普通砂浆中加聚合物防水涂料,从而使不防水的普通砂浆改性为防水砂浆,或在外墙抹灰层上涂刷一道聚合物水泥防水涂料,使整个外墙穿上了一件防水雨衣。

6. 聚合物防水涂料在厨房、卫生间防
水工程中的使用
对于建筑物的室内,在防水材料的选用时,首要考虑的是环保要求,防水材料一定是无气味,短期或长期对人体无任何危害,传统的聚氨酯防水涂料无法满足要求,而防水卷材在室内施工无法操作,因此,聚合物防水涂料是厨房、卫生间防水的不二选择。


7 聚合物水泥防水涂料的施工工法
7.1 聚合物水泥防水涂料涂膜型
①基面处理:基面要求必须平整、牢固、干净、无明水、无蜂窝麻面及油污。
②配料:按照规定的比例配料,乳液:水泥=1:0.8 重量比拌和,之后充分搅拌均匀直至料中不含颗粒(搅拌时间3 分钟左右,最好不用手工搅拌)。
在基面上涂刷三遍以上,至厚度达到规范要求,每遍涂刷时间一小时以上,以不粘手为准。
③增强处理:防水层如需增强,可采用无纺布作胎体进行增强。
7.2 聚合物水泥防水涂料砂浆型
用法一:作防水层用
①基层处理:基层应平整、结实、无空鼓、疏松、无蜂窝以及油污等。
②涂底胶:先涂刷一遍纯乳胶,作底涂。
③防水层:配制好的本品(乳胶:水泥:砂=1:2:4)搅和均匀做批挡,并压实摸光,批挡的厚度依设计要求而定。
用法二:作粘贴瓷砖用
①基层表面应平整,洁净,勿需凿毛处理。
②装饰材料表面应清洁,并需在水中浸泡后阴干。
③在基层表面和装饰材料的粘贴面,分别均匀涂摸一遍乳液胶。
④按乳液胶:水泥:砂??1:2:4 的重量比拌和的聚合物水泥砂浆均匀涂摸在装饰材料粘贴面上,粘贴厚度以5.0‐8.0 ㎜为宜,然后贴合于基层上并找正,压实。
8 结束语
聚合物水泥防水涂料由于具有独特的物理双重性,在某些工程部位的防水中是其它防水材料无法代替的。