干粉砂浆中概率筛面参数的研究

干粉砂浆中概率筛面参数的研究

干粉砂浆中概率筛面参数的研究 □ 赵利华□ 陈君若□ 刘显茜□ 陶翼飞 昆明理工大学机电工程学院昆明650093 干粉砂浆又称干拌砂浆、干混砂浆,是将水泥、干砂、矿物掺合料和功能性...
利用钢渣粉制备干粉砂浆的研究

利用钢渣粉制备干粉砂浆的研究

利用钢渣粉制备干粉砂浆的研究 吕林女,刘秀梅,何永佳,熊付刚,胡曙光(武汉理工大学,湖北武汉430070) 0 前言 今后胶凝材料的发展方向是利用大量废弃物以及工业副产物生产环境友...
浅谈干粉砂浆的抗裂性

浅谈干粉砂浆的抗裂性

1 前言 干粉砂浆目前在我国正处于快速发展时期, 虽然国内目前大规模专业的干粉砂浆生产企业还很少, 但随着人民生活水平的不断提高, 住宅私有化的不断发展, 购房者对建筑物的质量将会...
绿色干粉砂浆的性能及应用推广分析

绿色干粉砂浆的性能及应用推广分析

干粉砂浆( dry-mixed mortar) 20 世纪60 年代起源于西方国家( 主要是欧美国家) ,在我国起步较晚。近几年来,随着经济的快速发展,人们的环保意识越来越强烈,对...
聚合物改性水泥基外墙防水干粉砂浆的开发

聚合物改性水泥基外墙防水干粉砂浆的开发

聚合物改性水泥基外墙防水干粉砂浆的开发 □□顾期斌1 ,周昌盛2  (1. 湖北第二师范学院,湖北武汉 430205; 2. 中山市筑固建材技术开发有限公司,广东中山 528403...
胶粉含量对干粉建筑密封材料柔韧性的影响

胶粉含量对干粉建筑密封材料柔韧性的影响

建筑密封材料是建筑工程施工中不可缺少的一类用以处理建筑物的各种缝隙、进行填充, 并与缝隙表面很好地结合成一体,实现缝隙密封的材料[ 1] , 广泛应用于建筑幕墙、门窗、混凝土结构、...
聚合物品种与掺量对粘结干粉砂浆性能的影响

聚合物品种与掺量对粘结干粉砂浆性能的影响

1 前言 干粉砂浆亦称干拌砂浆、干混砂浆, 它是由专业生产厂生产、经干燥筛分处理的细集料与无机胶凝材料、矿物掺和料、其他外加剂按一定比例混合成的一种粉状或颗粒状混合物, 在施工现场...
添加剂颜料纤维在干粉砂浆生产线中的自动计量

添加剂颜料纤维在干粉砂浆生产线中的自动计量

添加剂颜料纤维在干粉砂浆生产线中的自动计量 王剑波1,吴漫天2 [1.湖北宝业建筑工业化有限公司,湖北鄂州436070;2.摩台克机械设备(上海)有限公司,上海201801] 1 ...
干粉砂浆在聚氨酯硬泡外保温系统中的应用

干粉砂浆在聚氨酯硬泡外保温系统中的应用

0 前言 聚氨酯硬泡体是一种具有隔热与防水功能的新型热固型高分子合成材料,其导热系数在目前常用的保温材料中最低。建设部专门成立了聚氨酯建筑节能应用推广工作组,致力于推动该材料在外墙...
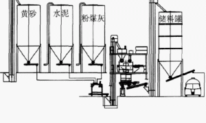
干粉砂浆生产线自动控制系统的设计

干粉砂浆生产线自动控制系统的设计

干粉砂浆生产线自动控制系统的设计 张 还,刘立山,张惠莉,赵丽清,李胜多 (青岛农业大学机电工程学院,山东 青岛 266109) 干粉砂浆(又称干混砂浆,D r y - m i x...
返回顶部